Дома под ключ в Калуге
Отзывы из Яндекс Карт
4.9
124 отзывов
Дополнительные услуги 88%
2 154 оценок
Комплектации 89%
1 535 оценок
Планировки 90%
2 484 оценок
Проекты 93%
2 231 оценок
С
Ирма А.01/19/2025 г.
Выбрали компанию Брус дома для строительства бани из профилированного бруса и ни разу не пожалели! С самого начала менеджер подробно всё объяснил, помог с выбором проекта, а строительная бригада работала быстро и очень аккуратно. Теперь у нас на участке стоит прекрасная баня, пахнущая деревом и уютом, спасибо за качественную работу и внимание к деталям.
Отзывы из Google Карт
4.8
75 отзывов
Дополнительные услуги 88%
2 154 оценок
Комплектации 89%
1 535 оценок
Планировки 90%
2 484 оценок
Проекты 93%
2 231 оценок
С
Ларион Берия04/20/2026 г.
Не поверите, но баню 5,5х5,5 с бассейном построили за 35 дней. Правда, бассейн сделали с мелким уклоном, пришлось сливать и переделывать стяжку. Компания покрыла расходы. Зато теперь красота.
С
Варвара Спиридонова03/24/2026 г.
Дом 12х12 с сауной и бассейном — это наш семейный проект. На стройке были скандалы с бригадиром из-за того, что он не хотел делать сложную стыковку бруса. Пришлось звонить директору, поменяли бригаду.
С
Эрнест Волошин01/15/2026 г.
Оказалось, что у них есть акции на дома зимой - взял дом 8,5х9,5 с цоколем и двумя гаражами со скидкой 15%. Строили три месяца, задержались на две недели из-за морозов. В цоколе сделали теплые полы, доволен, но акт приема подписал только после того, как все щели законопатили.
С
Сева Тарасов04/09/2025 г.
Все рекомендации по уходу за домом были подробно объяснены и переданы в письменном виде, виден комплексный подход к работе.
Отзывы из 2гис
4.9
31 отзывов
Дополнительные услуги 88%
2 154 оценок
Комплектации 89%
1 535 оценок
Планировки 90%
2 484 оценок
Проекты 93%
2 231 оценок
С
Герман Иванов02/13/2026 г.
Хочу отметить работу сборщиков: парни из БрусДомов на моём участке в дождь работали, не ныли. Дом 6,5х6,5 с балконом собрали за 22 дня, под крышу. Потом ещё и черепицу уложили ровно. Мелочь — забыли заглушки на коньке, но сам поставил.
С
Дея Кононова06/04/2025 г.
Наконец-то сбылась наша давняя мечта о собственной бане из профилированного бруса, и огромная благодарность компании «Брус дома» за воплощение! С момента обращения нас окружили такой заботой и вниманием, что все сложные вопросы решались легко и быстро. Строительная бригада работала не просто качественно, а с какой-то невероятной душевной теплотой, словно для себя. Теперь наша баня — это место силы и отдыха для всей семьи, пахнет лесом и уютом, всё идеально подогнано и радует глаз.


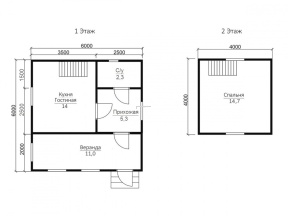
Проект №8 Дом с мансардой 6х6

брус камерной сушки
Создайте свой план для этого проекта
и отправьте его нам на расчет в один клик.
Под ключ (с отделкой) 6х6 Профилированный 140х140 мм 1421200 Заказать
Под ключ (с отделкой) 6х6 Профилированный 190х140 мм 1571200 Заказать
Под усадку (без отделки) 6х6 Cруб дома 140х140 мм 971200 Заказать
Под усадку (без отделки) 6х6 Cруб дома 190х140 мм 1101200 Заказать


Комплектация

Площадь застройки: м2
Длина: 6 м
Ширина: 6 м
Общая площадь: 49 м2
Под ключ (с отделкой) Под усадку (без отделки)
Фундамент Свайно-винтовой или ж/б сваи (рассчитываются отдельно).
Гидроизоляция фундамента Рубероид в два слоя.
Основание (обвязка) Из обрезного бруса (100х150 мм. 150х150 мм. 150х200 мм. согласно выбранному сечению бруса). Обработка антисептиком.
Количество рядов основания 2 2
Цокольное перекрытие Обрезной брус камерной сушки 100х150/50х200 мм. с шагом 600 мм. Обработка антисептиком. Обрезной брус естественной влажности 100х150/50х200 мм. с шагом 600 мм. Обработка антисептиком.
Пол черновой Обрезная доска камерной сушки 20х100 мм. Обрезная доска естественной влажности 20х100 мм.
Внешние стены Профилированный брус камерной сушки, сечением 90х140/140х140/190х140 мм. по выбранной комплектации. Два вида профиля: 
1. С двух сторон, прямой со снятой фаской. 2. Снаружи под «блок- хаус», внутри прямой.
Высота сруба: Сруб одноэтажный- 18 венцов
Сруб с мансардой- 18 венцов
Сруб в 1,5 этажа- 18 венцов, далее каркас с внешней отделкой имитацией бруса.
Сруб в 2 этажа- 37 венцов
Профилированный брус естественной влажности, сечением 90х140/140х140/190х140 мм. по выбранной комплектации. Два вида профиля: 
1. С двух сторон, прямой со снятой фаской. 2. Снаружи под «блок- хаус», внутри прямой.
Высота сруба: Сруб одноэтажный- 18 венцов
Сруб с мансардой- 18 венцов
Сруб в 1,5 этажа- 18 венцов, далее каркас с внешней отделкой имитацией бруса.
Сруб в 2 этажа- 37 венцов
Межвенцовый утеплитель Джут (льноджутовое полотно). Джут (льноджутовое полотно).
Перегородки 1-го этажа Профилированный брус камерной сушки, сечением 90х140 мм. Профилированный брус естественной влажности, сечением 90х140 мм.
Перегородки 2-го этажа Каркасные: доска камерной сушки 40х100 мм, обшитые евровагонкой хвойных пород, камерной сушки, толщиной 12,5 мм. сорт «АВ» (дома с мансардой и в 1,5 этажа). Брусовые: профилированный брус камерной сушки, сечением 90х140 мм. (дома двухэтажные). Каркасные: доска естественной влажности 40х100 мм. (дома с мансардой и в 1,5 этажа). Брусовые: профилированный брус естественной влажности, сечением 90х140 мм. (дома двухэтажные).
Сборка сруба Берёзовый нагель. Берёзовый нагель.
Соединение углов сруба «Тёплый угол» (коренной шип). «Тёплый угол» (коренной шип).
Высота от пола до потолка Сруб одноэтажный: 2,4 м. (18 венцов) Сруб с мансардой: 1-ый этаж- 2,4 м. (18 венцов)
2-ой этаж (мансарда)- 2,3 м.
Сруб в полтора и два этажа:
1-ый этаж 2,4 м ±4 см. (18 венцов)
2-ой этаж 2,4 м ±4 см. каркасные аттиковые стены (боковые) высотой 1,5 м. в полутораэтажном доме
2,4 м ±4 см (поднят брусом на 18 венцов) в двухэтажном доме.
Сруб одноэтажный: 2,5 м. (18 венцов) Сруб с мансардой: 1-ый этаж- 2,5 м. (18 венцов)
2-ой этаж (мансарда)- 2,4 м.
Сруб в полтора и два этажа:
1-ый этаж 2,5 м ±4 см. (18 венцов)
2-ой этаж 2,5 м ±4 см. каркасные аттиковые стены (боковые) высотой 1,5 м. в полутораэтажном доме
2,5 м ±4 см (поднят брусом на 18 венцов) в двухэтажном доме.
Утепление (пол, потолок, мансарда) Минеральная вата Knauf 150 мм. Отсутствует.
Пароизоляция (пол, потолок, мансарда) Ондутис R70. Отсутствует.
Пол чистовой Шпунтованная доска камерной сушки толщиной 36 мм. сорт АВ. по рейке 20х40 мм. либо шпунтованная ДСП 16 мм. по разряженной обрешётке из обрезной доски камерной сушки 20х100 мм. Отсутствует.
Потолки Евровагонка камерной сушки толщиной 12,5 мм. сорт АВ. Отсутствует.
Окна Деревянные, двойного остекления. Отсутствуют.
Двери Входная- металлическая, утеплённая (Россия). Межкомнатные- филёнчатые. Отсутствуют.
Наличники на окна и двери Наличник деревянный, строганый, камерной сушки 70-90 мм. Отсутствует.
Шиповка оконных и дверных проёмов (ройки) Да. Отсутствует.
Лестница (при наличии второго этажа) Деревянная, одно или двухмаршевая. Перила- заводские резные, балясины- заводские точеные, устанавливаются стартовые точёные столбы. Ступени 40х200 мм. Тетива лестницы- 90х140 мм. Отсутствует.
Крыша Двускатная, ломаная или вальмовая в соответствии с проектом. Двускатная, ломаная или вальмовая в соответствии с проектом.
Стропильная система Выполнена из обрезной доски камерной сушки 40х150 мм. Шаг установки стропильных ног 600 мм. Выполнена из обрезной доски естественной влажности 40х150 мм. Шаг установки стропильных ног 600 мм.
Обрешётка Выполняется из обрезной доски камерной сушки толщиной 20-22 мм. Шаг крепления обрешетки 300 мм. Контробрешётка выполняется из бруска камерной сушки 40х50 мм. Крепится по стропильным ногам (вентиляционный зазор). Выполняется из обрезной доски естественной влажности толщиной 20-22 мм. Шаг крепления обрешетки 300 мм. Контробрешётка выполняется из бруска естественной влажности 40х50 мм. Крепится по стропильным ногам (вентиляционный зазор).
Подкровельная мембрана Ондутис А100 Ондутис А100
Кровельное покрытие (на выбор) Ондулин, Черепица Ондулин. Ондулин, Черепица Ондулин.
Фронтоны (при наличии) Каркас из обрезной доски камерной сушки 40х150 мм. Обшиваются вагонкой камерной сушки толщиной 16 мм. сорт АВ по контррейке 20х40 мм. (вентиляционный зазор). Влаго-ветрозащита Ондутис А100. Монтаж вентиляционных решёток. Каркас из обрезной доски естественной влажности 40х150 мм. Обшиваются вагонкой камерной сушки толщиной 16 мм. сорт АВ по контррейке 20х40 мм. (вентиляционный зазор). Влаго-ветрозащита Ондутис А100. Монтаж вентиляционных решёток.
Свесы крыши Ширина 400 мм. Подшиваются вагонкой камерной сушки, сорт АВ. Ширина 400 мм. Подшиваются вагонкой камерной сушки, сорт АВ.
Терраса/балкон (при наличии) Устанавливаются опорные столбы из строганного бруса камерной сушки 140х140 мм. с компенсационными болтами под усадку. Устанавливаются опорные столбы из строганного бруса естественной влажности 140х140 мм. с компенсационными болтами под усадку.
Отделка потолка террасы/балкона Евровагонка камерной сушки толщиной 12,5 мм. сорт АВ. Отсутствует.
Пол террасы/балкона Шпунтованная доска камерной сушки толщиной 36 мм. сорт АВ. Отсутствует.
Ограждение террасы/балкона Перила- строганая доска. Балясины- точеные, фигурные. Либо ограждение в скандинавском стиле. Устанавливаются ступени у входа. Отсутствует.
Допуск на геометрические параметры сруба Составляет +/- 50 мм по длине с каждой стороны. Составляет +/- 50 мм по длине с каждой стороны.
Допускается стыковка бруса, вагонки и половой доски По всему периметру стен дома (если ширина и длина дома более 6,0 метров). Вагонки и доски пола в каждой отдельной комнате. По всему периметру стен дома (если ширина и длина дома более 6,0 метров).
Допуски по брусу, доске +/- 5 мм. +/- 5 мм.
В стоимость включена Доставка комплекта материала в радиусе 500 км. от г. Пестова Новгородской области и сборка дома на вашем участке. Доставка комплекта материала в радиусе 500 км. от г. Пестова Новгородской области и сборка дома на вашем участке.
Гарантия 5 лет. 2 года.
Бытовка строительная 2,0х3,0 м. каркасно-щитовая. Стоимость 23000 руб. Остаётся на участке Заказчика. Стоимость 23000 руб. Остаётся на участке Заказчика.
Туалет 1,0х1,0 м. каркасно-щитовой. Стоимость 12000 руб. Остаётся на участке Заказчика. Стоимость 12000 руб. Остаётся на участке Заказчика.
Генератор Стоимость аренды на весь срок строительства 10000 руб. ГСМ за счёт Заказчика. Стоимость аренды на весь срок строительства 10000 руб. ГСМ за счёт Заказчика.

Сооружение деревянных домов осуществляется в 2-х видах: под усадку, когда дом отстаивается в течение определенного времени и сразу под ключ.

В зимнее время эффективнее строить из зимнего леса, в летний сезон - из бруса камерной сушки.

Наиболее подходящими для сада или дачи считают дома на винтовых сваях, у нас присутствуют одноэтажные и полуторатажные дома.

Если вы планируете проживать постоянно, предлагаем теплые и надежные одноэтажные и двухэтажные дома на ленточных и плитных фундаментах.

Имеется два размера профилированного бруса: 190х140 мм и 140х140 мм. Дома из вертикального бруса возводятся с применением бруса 140х190 мм.

Дополнительные услуги


Дом из профилированного бруса 6х6 м. с – это уникальное совмещение современных технологий и многовекового опыта. Общая площадь – 49 кв.м..

Стропильная система образует двускатную крышу. В качестве кровельного покрытия выступает ондулин. Клиенту на выбор предоставляется цвет материала: зеленый, коричневый или красный.Для возведения стен (внешних и внутренних) используется профилированный брус высокого качества размером 100х150 мм, который отличается экологичностью и природной красотой, благодаря чему можно отказаться от дополнительной дорогой отделки фасада.

Благодаря использованию зимних двухсекционных стеклопакетов 1х1,2 м, в полутораэтажном доме обеспечивается хорошее естественное освещение.

Двойные полы утепляются матами URSA/ISOVER.

Наша компания рада выполнить ваш заказ на строительство загородного дома в Калуге по проекту 8 или любому проекту из каталога. Мы обеспечим все требования и правила возведения зданий. Благодаря богатому опыту наших специалистов, мы способны реализовать проект любой сложности, а разумные цены делают наши услуги доступными.


Популярные проекты

хит продаж брус камерной сушки
Тип: с балконом, с большой террасой
Общая площадь: 1562
2300700
от 2191200
хит продаж брус камерной сушки
Тип: с большой террасой
Общая площадь: 1202
1670700
от 1591200
хит продаж брус камерной сушки
Тип: с большой террасой
Общая площадь: 1402
2594700
от 2471200

Заказать или задать вопрос



Заказать или задать вопрос

Заказать звонок