Дома под ключ в Калуге
Отзывы из Яндекс Карт
4.9
85 отзывов
Дополнительные услуги 88%
2 154 оценок
Комплектации 89%
1 535 оценок
Планировки 90%
2 484 оценок
Проекты 93%
2 231 оценок
С
Прасковья Олейникова03/27/2026 г.
Заказала у них баню с эркером 6х8, чтобы было необычно. И правда, получилось стильно, гости ахают. Только вот эркер промерзает немного, стена там тоньше основной, спросила их — говорят, это особенность конструкции, надо утеплять снаружи.
С
Иван Пименов01/15/2026 г.
Поначалу думал, что обманут, потому что цена ниже рынка была. Но нет, дом 6х7 с мансардой и эркером построили добротно. Из минусов — не дождался, пока они вывезут строительный мусор, сам нанял грузчиков.
С
Макс Злобин04/21/2025 г.
Цена и качество полностью соответствуют друг другу — за эти деньги я получил добротный и красивый дом из бруса, в котором приятно находиться и который не стыдно показать друзьям.
Отзывы из Google Карт
4.8
51 отзывов
Дополнительные услуги 88%
2 154 оценок
Комплектации 89%
1 535 оценок
Планировки 90%
2 484 оценок
Проекты 93%
2 231 оценок
С
Клим03/05/2025 г.
Выражаю признательность всей компании за слаженную работу; от первого звонка до сдачи объекта чувствовал поддержку и искреннее желание помочь реализовать мою мечту о идеальной бане.
Отзывы из 2гис
4.9
31 отзывов
Дополнительные услуги 88%
2 154 оценок
Комплектации 89%
1 535 оценок
Планировки 90%
2 484 оценок
Проекты 93%
2 231 оценок
С
Даниил Митрофанов05/13/2026 г.
Искал бюджетный вариант для дачи, взял каркасник 3х4 под усадку? Шучу, 4х5 одноэтажный с навесом. Собрали за пять дней, отлично. Но чек приложили неверный — пришлось переделывать, три дня ждал.
С
Люда С.04/29/2026 г.
Работали ребята молодые, но очень старательные. Иногда шумно было, музыку включали, но зато после работы всегда площадку прибирали. Соседи даже комплимент сделали, что у нас такая тихая стройка.
С
Ефим Авдеев02/17/2026 г.
Переживал за усадку, но через год осадка была сантиметра два, регулируемые опоры под лагами выкрутили без проблем. Ребята подъехали по звонку.
С
Леся Ц.08/19/2025 г.
Обратилась в Брус дома по совету подруги и осталась невероятно довольна, поскольку менеджеры подробно ответили на все мои вопросы, а строительная бригада проявила себя как настоящие знатоки своего дела, возведя баню моей мечты из превосходного материала.


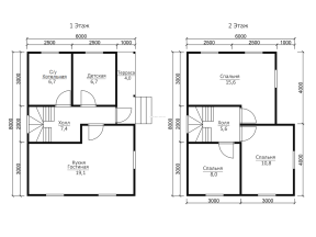
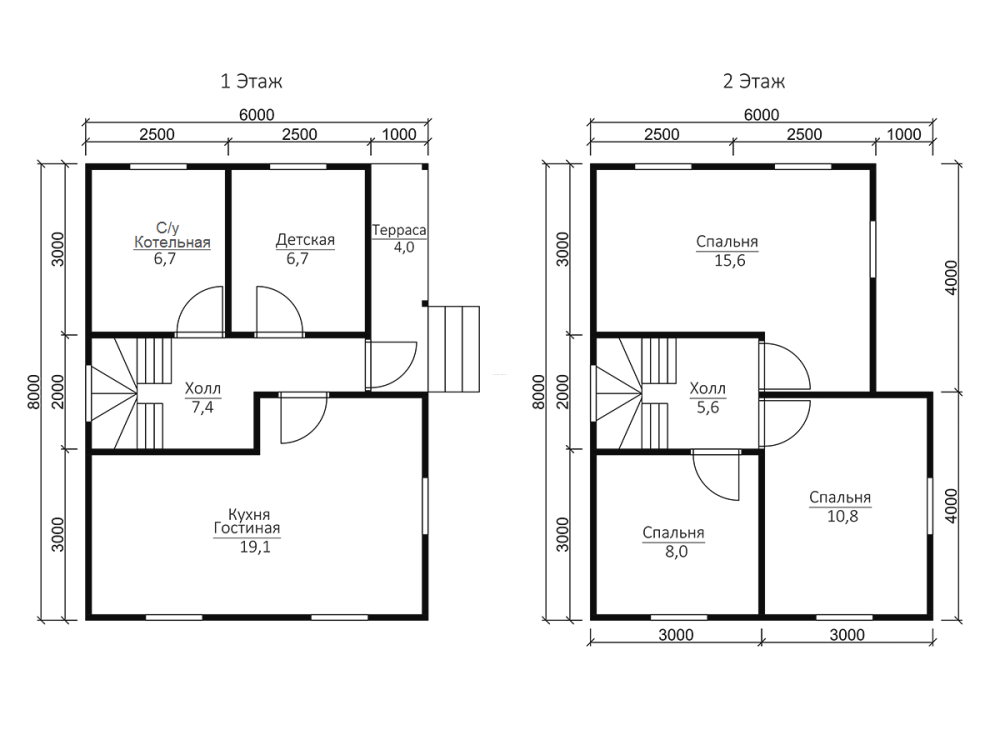
Проект №57 Двухэтажный дом 6х8

каркас из строганой доски
Создайте свой план для этого проекта
и отправьте его нам на расчет в один клик.
Каркасный дом (150 мм) 6х8 Толщина утепления 150 мм 2741200 Заказать
Каркасный дом (200 мм) 6х8 Толщина утепления 200 мм 3001200 Заказать

Для того, чтобы получить личную планировку, воспользуйтесь нашим планировщиком.

С помощью планировщика вы можете создать максимально подходящие планы, эскизы, схемы, чертежи дома с мансардой, эркером, с требуемым числом комнат. В итоге вы получите проект с планировкой, на 100% отвечающий вашим потребностям.

Заказывая дом вы имеете возможность подобрать тип кровли: двускатная, четырехскатная и вальмовая. Двухскатная крыша считается самой популярной у малометражных домов.

Востребованные размеры домов сегодня: мини - до 50м2 (в большинстве случаев, 1 этажные дома); компактные - от 70 до 100 квадратов (обычно двухэтажные); большие - от 150 кв. М и более.

Предлагаем дуплексы - каркасные дома с двумя входами, рассчитанные на несколько семей. Дома строятся сразу для нескольких хозяев и делятся на две половины, для обоих половин - отдельный вход.


Наши работы

Перейти в галерею


Комплектация

Площадь застройки: 83.9 м2
Длина: 6 м
Ширина: 8 м
Общая площадь: м2
Исполнение Под ключ (с отделкой)
Фундамент Свайно-винтовой или ж/б сваи (рассчитываются отдельно).
Гидроизоляция фундамента Рубероид в два слоя.
Основание (обвязка) Из обрезного бруса 150х150 мм. 150х200 мм. согласно выбранной толщине утепления. Торцевая доска строганая 45х145/45х195+/-5 мм. согласно выбранной толщине утепления. Обработка антисептиком.
Цокольное перекрытие Строганая доска камерной сушки 45х145/45х195+/-5 мм. с шагом 590 мм. Обработка антисептиком.
Пол черновой Обрезная доска камерной сушки 20х100 мм.
Влаго-ветрозащита чернового пола Мембрана Ондутис А100.
Внешние стены Стойки каркаса из строганой доски камерной сушки 45х145/45х195+/-5 мм. с шагом 590 мм. Верхняя двойная и нижняя обвязки из строганой доски камерной сушки 45х145/45х195+/-5 мм. Разгрузочный ригель из строганой доски 45х145+/-5 мм. Укосины из строганой доски 20х95 мм.
Перегородки Стойки каркаса из строганой доски камерной сушки 45х95+/-5 мм. с шагом 590 мм. Верхняя двойная и нижняя обвязки из строганой доски 45х95+/-5 мм. Разгрузочный ригель из строганой доски камерной сушки 45х145+/-5 мм. Укосины из строганой доски камерной сушки 20х95 мм.
Сборка каркаса На гвозди.
Высота от пола до потолка Дом одноэтажный: 2,5 м. Дом с мансардой: 1-ый этаж- 2,5 м.
2-ой этаж (мансарда)- 2,3 м.
Дом в полтора и два этажа:
1-ый этаж 2,5 м.
2-ой этаж 2,4 м. в полутораэтажном доме
2,5 м. в двухэтажном доме.
Внешняя отделка стен Имитация бруса камерной сушки, сорт АВ, толщиной 17 мм. Монтаж через строганый брусок камерной сушки 45х45+/-5 мм. (вентилируемый фасад). Влаго-ветрозащитная мембрана- Ондутис А100.
Внутренняя отделка стен, перегородок Евровагонка камерной сушки, сорт АВ, толщиной 12,5 мм. по строганой рейке 20х40+/-5 мм. либо ГКЛ 12,5 мм.
Отделка потолка Евровагонка камерной сушки, сорт АВ толщиной, 12,5 мм. по строганой рейке 20х40+/-5 мм. либо ГКЛ 12,5 мм.
Пол чистовой Шпунтованная доска камерной сушки толщиной 35-36 мм. сорт АВ. по строганой рейке 20х40+/-5 мм. либо шпунтованная ДСП 16 мм. по разряженной обрешётке из строганой доски камерной сушки 20х95+/-5 мм.
Утепление (пол, потолок) Минеральная вата Knauf 150/200 мм. согласно выбранной толщине утепления.
Утепление стен Плитный утеплитель Rockwool, толщиной 150/200 мм. согласно выбранной толщине утепления.
Звукоизоляция перегородок Плитный утеплитель Rockwool, толщиной 100 мм.
Пароизоляция (стены, перегородки, пол, потолок) Плёнка Ондутис R70. Дополнительная герметизация нахлёстов/примыканий пароизоляционной плёнки клейкой лентой Delta.
Окна Двухкамерные стеклопакеты ПВХ белого цвета, профиль 60 мм. В комплекте: отливы, подоконники, москитные сетки.
Двери Входная- металлическая, утеплённая (Россия). Межкомнатные- филёнчатые.
Наличники на окна и двери Наличник деревянный, строганый, камерной сушки 70-90 мм. с двух сторон.
Лестница (при наличии второго этажа) Деревянная, одно или двухмаршевая. Перила- заводские резные, балясины- заводские точеные, устанавливаются стартовые точёные столбы. Ступени 40х200 мм. Тетива лестницы- 90х140 мм.
Крыша Двускатная, ломаная или вальмовая в соответствии с проектом.
Стропильная система Выполнена из строганой доски камерной сушки 45х145/45х195+/-5 мм. Шаг установки стропил 590 мм.
Обрешётка Выполняется из строганой доски камерной сушки толщиной 20х95+/-5 мм. Шаг крепления обрешетки 350 мм. Контробрешётка выполняется из строганого бруска камерной сушки 45х45+/-5 мм. Крепится по стропилам (вентиляционный зазор).
Подкровельная мембрана Ондутис А100
Кровельное покрытие (на выбор) Металлочерепица 0,45 мм. Цвет на выбор.
Фронтоны (при наличии) Каркас из строганой доски камерной сушки 45х145/45х195+/-5 мм. Обшиваются имитацией бруса камерной сушки, сорт АВ, толщиной 17 мм. Монтаж через строганый брусок камерной сушки 45х45+/-5 мм. (вентилируемый фасад). Влаго-ветрозащитная мембрана- Ондутис А100. Монтаж вентиляционных решёток.
Свесы крыши Ширина 400 мм. Подшиваются вагонкой камерной сушки, сорт АВ.
Терраса/балкон (при наличии) Устанавливаются опорные столбы из строганного бруса камерной сушки 140х140 мм.
Отделка потолка террасы/балкона Евровагонка камерной сушки толщиной 12,5 мм. сорт АВ.
Пол террасы/балкона Шпунтованная доска камерной сушки толщиной 35-36 мм. сорт АВ.
Ограждение террасы/балкона Перила- строганая доска. Балясины- точеные, фигурные. Либо ограждение в скандинавском стиле. Устанавливаются ступени у входа.
Допуск на геометрические параметры Составляет +/- 50 мм по длине с каждой стороны.
Допускается стыковка имитации бруса, вагонки и половой доски По всему периметру стен дома (если ширина и длина дома более 6,0 метров). Вагонки и доски пола в каждой отдельной комнате.
Допуски по имитации бруса, вагонке, доске +/- 5 мм.
В стоимость включена Доставка комплекта материала в радиусе 500 км. от г. Пестова Новгородской области и сборка дома на вашем участке.
Гарантия 5 лет.
Бытовка строительная 2,0х3,0 м. каркасно-щитовая. Стоимость 23000 руб. Остаётся на участке Заказчика.
Туалет 1,0х1,0 м. каркасно-щитовой. Стоимость 12000 руб. Остаётся на участке Заказчика.
Генератор Стоимость аренды на весь срок строительства 15000 руб. ГСМ за счёт Заказчика.

Постройка каркасного дома может выполняться в двух вариантах: под ключ и под усадку, когда сруб отстаивается в течение некоторого времени.

Зимой специалисты советуют строить дом в холодную погоду, чтобы каркас не промок, в летний период - не в дождливую.

Оптимальными для дачи или сада считают дома на винтовых сваях, у нас вы увидите одноэтажные и полуторатажные варианты.

В случае если дом будет строиться для постоянного проживания, можем предложить теплые одноэтажные и двухэтажные коттеджи и дома на плитных и ленточных фундаментах.

Существует два вида утепления: 150 мм и 200 мм. Каркасные дома с утеплителем сто пятьдесят миллиметров получаются дешевле, но не настолько энергоэффективными.

Дополнительные услуги


Каркасный дом – это скорость строительства, легкость конструкции и долговечность эксплуатации.  Проект 57 двухэтажного каркасного дома с займет на участке кв.м. и подойдет для сезонного или постоянного проживания.

Даже в пасмурную погоду в доме будет светло и уютно благодаря двойным окнам, дополнительно обеспечивающим необходимый воздухообмен.

Стены и перекрытия выполняются по классической каркасной схеме: несущий элемент – сухая калиброванная доска сечением 150 Х 50 мм, утеплитель (минеральная вата), паро- и ветроизоляционные пленки. Стропильная система деревянная.

Поскольку дом легкий, фундамент может быть любой – от винтовых свай до железобетонной плиты. Крыша двускатная, выполняется из ондулина красного, зеленого или коричневого цвета.

Если дом предполагается использовать только летом, то достаточно 50 мм утеплителя внешних стен и перекрытий. Для всесезонного проживания необходимо брать толщину утеплителя 150 мм.

Специалисты нашей фирмы готовы адаптировать данный проект под конкретный участок в Калуге и учесть пожелания заказчика.


Популярные проекты


Каркасные дома 6х8 Бани из бруса с балконом Бани из бруса с верандой
хит продаж
Тип:
Общая площадь: 2
3109200
от 2961200
хит продаж
Тип:
Общая площадь: 2
1282200
от 1221200
хит продаж
Тип: с балконом, с маленькой террасой
Общая площадь: 2
2216700
от 2111200
Дома из бруса

Заказать или задать вопрос



Заказать или задать вопрос

Заказать звонок